Stone houses with tiled roofs in a green valley surrounded by forested hills and mountains under dark storm clouds.
A serene river flowing through a lush green forest with small waterfalls and rocky banks under a partly cloudy sky.
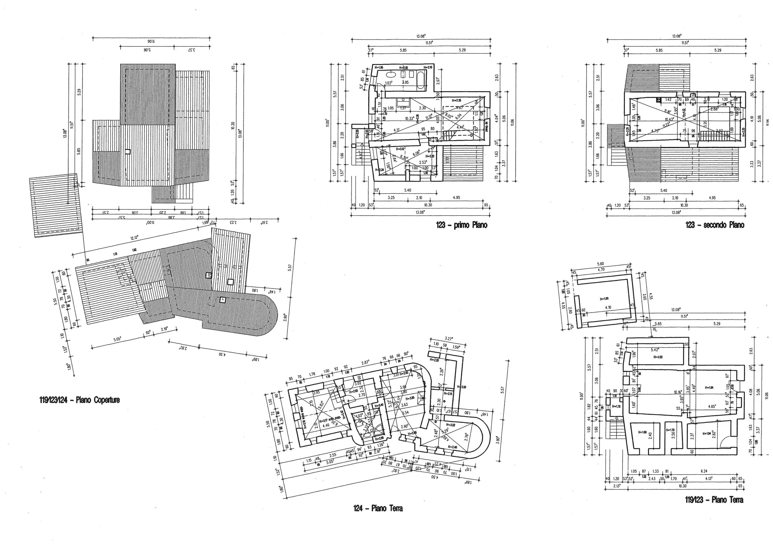
Architectural floor plans and building blueprints with measurements and annotations.
A detailed black-and-white plot map showing various land lots with boundaries, labels, and some shaded areas, including a highlighted green border around a specific section.

Castel Vecchio is an exceptionally beautiful property in the wooded foothills of the Apennines. It is situated on a grassy and year-round sunny plain at about 620 m in the border triangle between Marche, Tuscany and Umbria, surrounded by 9 ha of own forest and farmland and supplied by its own water source.

Access is via a gravelled private road that ends between two massive oak trees. These frame the entrance to the property with fruit and shade-giving deciduous trees and give the first view of the two quarry stone houses.

The smaller building to the south has a kitchen with the central wood/heating stove supplying the house's radiators. In the directly adjoining living/dining room, the large open fireplace spreads additional cosy warmth in autumn and winter. The bedroom with mezzanine floor and the shower room are accessed via a corridor in between.

In front of the living/dining room is the large terrace covered with natural stone slabs, to which the kitchen is also connected via the two windows. In summer, a pergola covered with wisteria provides shade. Oleander, forsythia and pomegranate bushes as well as aromatic herbs frame this beautiful outdoor area.

The larger building extends over three levels. The living level on the 1st floor is reached via an external staircase made of natural stones with a covered and wind-protected landing. The interior surprises with a loft-like, partly two-storey high and light-flooded room. Here is the cooking, living and dining area with central wood-burning stove as well as the access to a separate room and the bathroom. A staircase leads to the spacious gallery level with views into the attic.

The lower level is at the surrounding level. It has a large multifunctional room that takes up the entire depth of the house, a laundry room and a workshop. The terrace of this house is slightly set back, covered by vine leaves and surrounded by jasmine and lavender plants. From here there is a magnificent view in the direction of the Alpe de la Luna and the neighbouring Tuscany.

A small piazza forms between the terrace and the two houses, where the old baking oven is also located. The traditional materials of the walls, the roofs and the paved outdoor areas surrounding both houses, together with climbing and aromatic plants, create a typical Italian village atmosphere.

Price 490 000 €

"This is the perfect place to

unwind and feel yourself."